













FRANK DRAWINGSAN ILLUSTRATION PROJECT
30 hand sketches for
30 Houses 1960-2012: Selected Residential Works of Architect Frank Welch
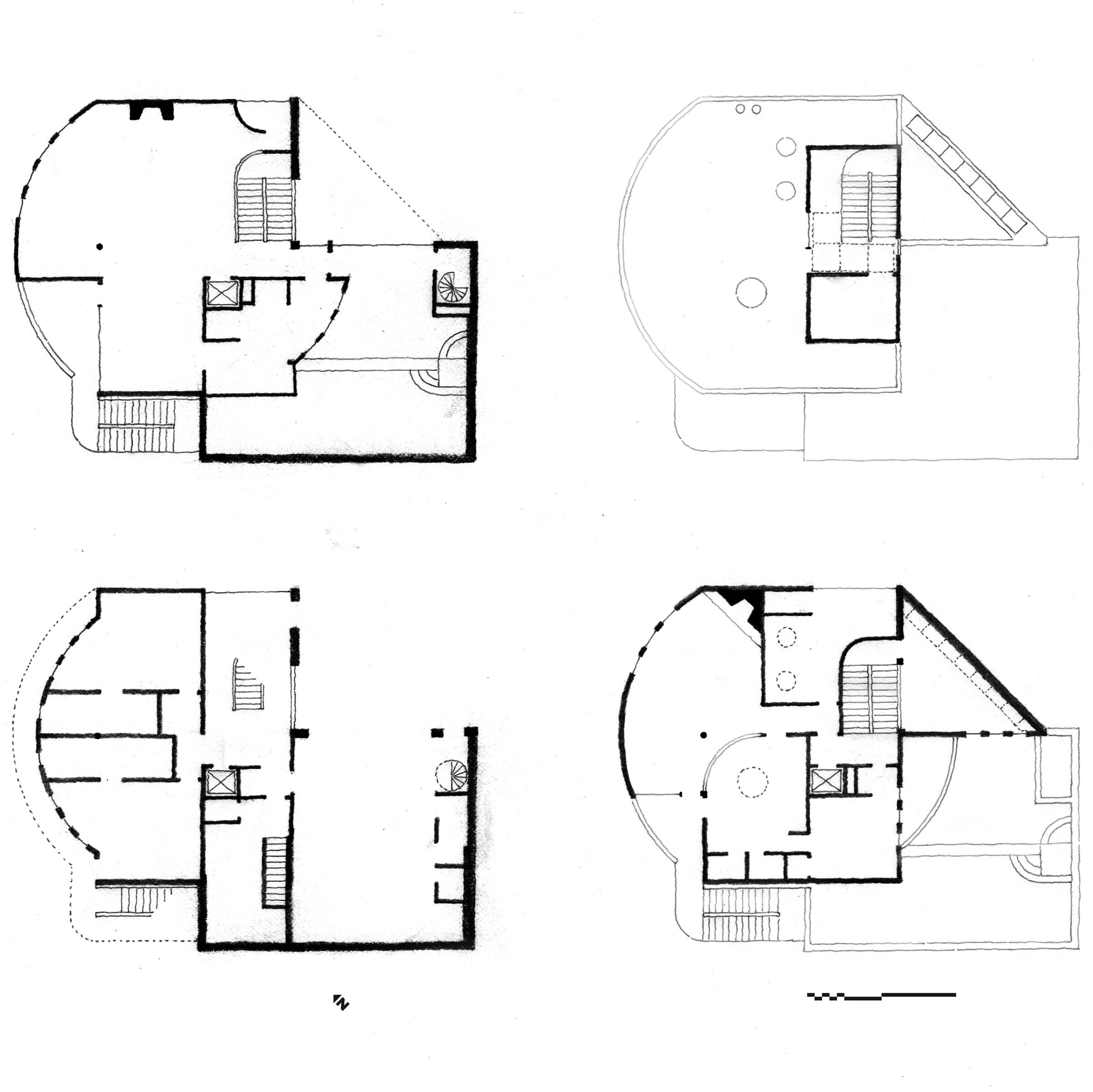
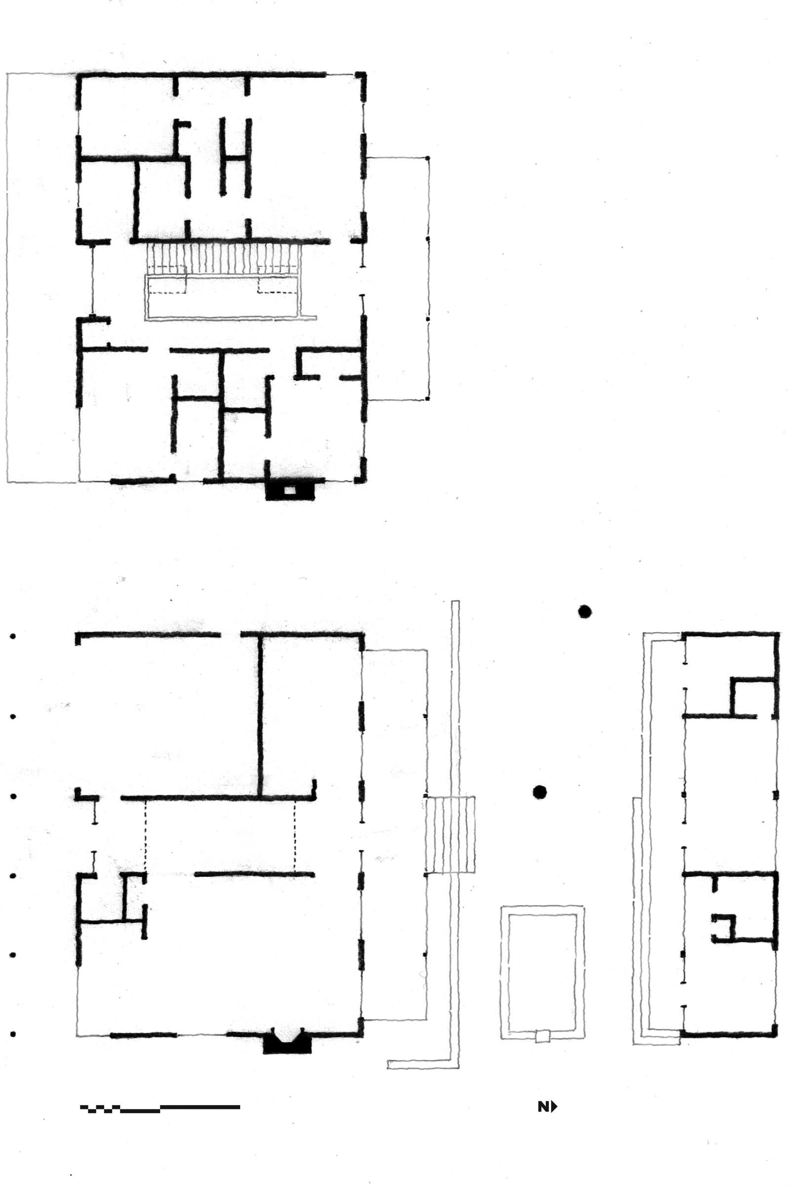
THE PROJECT At the beginning of 2014, I received a call from Dallas architect Frank Welch. He said I’d been recommended for a project which he admitted was ‘a bit odd’. Frank was 87 at the time and told me that there were two books in the making to document his life and work. One of those was a monograph featuring 30 of his house designs, and he asked that I’d freehand sketch floor plan diagrams for each of his projects to be presented in the book. Though this commission was off the beaten path for my practice, I accepted it in order to get to know Frank more and to spend focused time studying his work.
THE PERSON Frank was always attentive and kind. At the same time, he carried a knowing wit that was seemingly invincible. To illustrate such: one day early in our process, I went to his office for us to review an initial sample and layout. In an effort to express my enjoyment of the project, I began to tell him of the enlightenment I’d found while spending time with that first floor plan. As I spoke a slight grin appeared on Frank’s face, and he said, “I’d like to keep my head the same size it is . . . so, about the drawings . . . “
THE WORK For almost a decade prior to starting these drawings, I’d been experiencing Frank’s influence on Texas architecture. Getting to spend my mornings with his 30 house designs spanning over 5 decades, I noticed the body of work had an uncanny knack for superseding style. When viewed alone each floor plan was relentlessly sophisticated, and at the same time, the photographs revealed the houses to be most approachable and human.
MEDIUM : graphite + ink on vellum
JDS : illustration . production for print
I’m grateful to have worked with everyone on this project.
Shop the book HERE.