









COLOR CLOCK MODEL1/8" = 1'-0"
During my time at Max Levy Architect, the number of people working there never exceeded four; so, the job description was quite vast. One of the many joys of that circumstance was that I was often called upon to build and photograph a physical scale model for many of the design schemes.
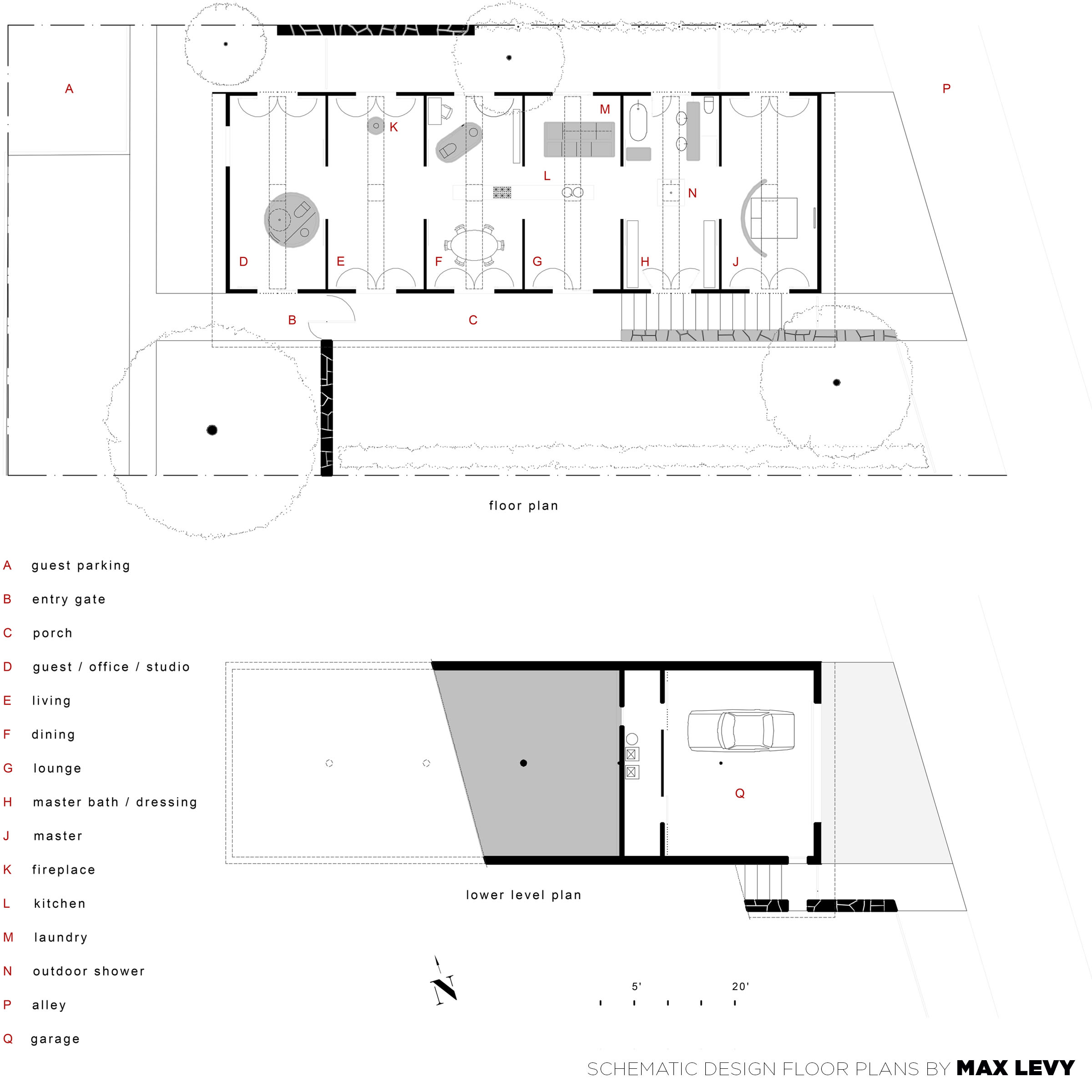
This model was for an unbuilt project called Color Clock House.
JDS : model fabrication . hand-drafted construction drawings (not shown here)
materials : basswood . mahogany . chipboard . bush branches . sandpaper
actual dimensions : 8.38" W x 18.63" L x 7.25" H