













880 INTERIORSPACES
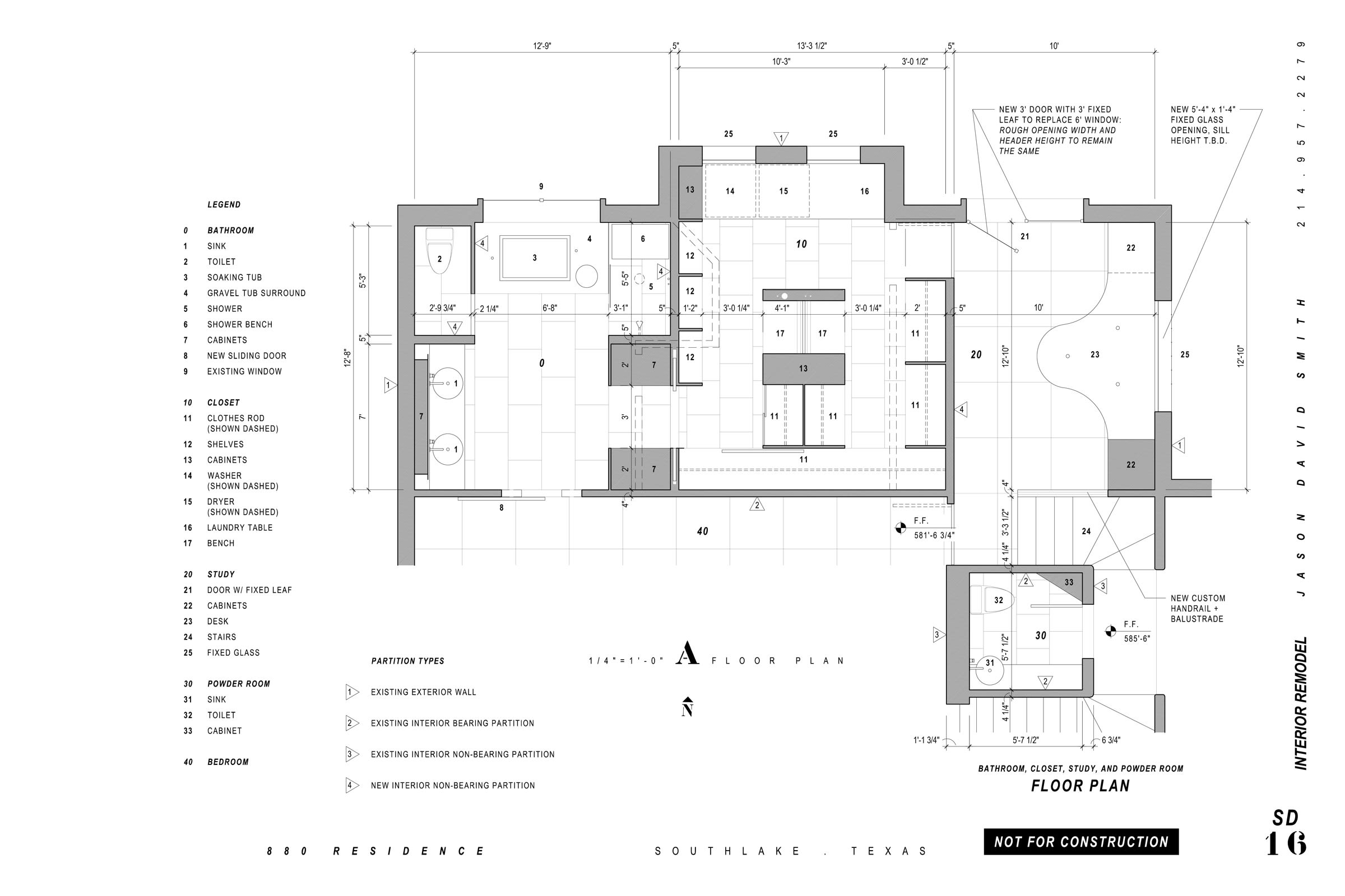
This is a property where JDS, Inc. realized the remodel of an architecturally significant house, where part of the project included rethinking a powder room and master suite.
MATERIALS : white oak . stainless steel . rough sawn cedar . polished concrete . basalt (tile & gravel)
JDS : architecture . fabrication administration . full-time on-site construction administration
880 INTERIOR is part of the 880 PROJECT.